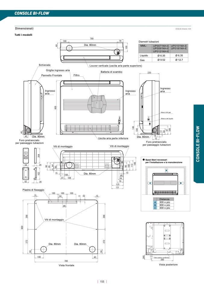
CONSOLE BI-FLOW

Dimensional

i

Tutti i modelli

Unità di misura: mm

Diametri tubazioni

Dia. 80m

m

MML-

UP0071NH-E

UP0091NH-E

UP0121NH-E

UP0151NH-E

UP0181NH-E

Liquido

Gas

Ø 6.35

Ø 6.35

Ø 9.52

Ø 12.7

Schienale

Griglia ingresso aria

Pannello Frontal

e

Ingress

o

ari

a

Louver verticale (uscita aria parte superiore)

Batteria di scambio

Filtro

Ingresso

aria

Ingress

o

ari

a

Dia. 80mm

Dia. 80mm

Uscita aria parte inferiore

Foro pretranciato

per passaggio tubazioni

Viti di montaggio

Viti di montaggio

Attacco del gas

Attacco del liquido

Foro pretranciato

per passaggio tubazion

i

Spazi liberi necessari

per l’installazione e la manutenzion

e

C

O

N

S

O

L

E

B

I

-

F

L

O

W

A

Dia. 80m

m

C

B

Piastra di fissaggio

Distanz

a

A

B

C

300 o più

300 o più

300 o più

Viti di montaggi

o

Dia. 80mm

Dia. 80mm

Tubo scarico condensa

Vista frontale

Vista posterior

e

155