A PARET

E

Dimensional

i

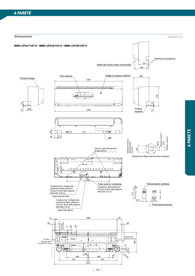
MMK-UP0271HP-E / MMK-UP0301HP-E / MMK-UP0361HP-

E

Pannello frontale

7

.

5

7

4

Filtro dell'aria

1200

50

120

0

5

0

49

7

2

23

38

61 o pi

ù

(Distanza dalla

superficie del muro)

Tubazioni per il refrigerante

(lunghezza della tubazione

che può uscire dalla sagoma

dell'unità: 0,35 m)

Dado flare Ø15.88

Tubazioni per il refrigerante

(lunghezza della tubazione

che può uscire dalla sagoma

dell'unità: 0,4 m)

Dado flare Ø9.5

2

5

7

o

p

i

ù

(

D

i

s

t

a

n

z

a

d

a

l

s

o

f

f

i

t

t

o

)

7

5

0

2

4

38

0

51

5

76

0

109

2

8

0

120

0

N

P

Gancio, parte del pannello

di appensione

Aletta del flusso d'aria orizzontal

e

Griglia di ingresso dell'ari

a

(

D

i

a

m

e

t

r

o

e

s

t

e

r

n

o

d

e

l

l

'

i

s

o

l

a

m

e

n

t

o

7

.

5

7

4

Tubo scarico condensa

(lunghezza della tubazione

che può uscire dalla sagoma

dell'unità: 0,4 m

)

8

5

123 o più

Ø

8

0

Unità di misura: mm

dimensione di un'apertura

17

6

250

28

0

3

4

8

Foder

a

isolante

(

Ø

1

4

)

(

d

i

a

m

e

t

r

o

i

n

t

e

r

n

o

)

Ø

1

6

t

e

r

m

i

c

o

)

Ø

2

9

(

d

i

a

m

e

t

r

o

e

s

t

e

r

n

o

)

(dimensione della punta del tubo di scarico

)

Telecomando wireles

s

2

0

1

7

2

57.

5

63

Porta-telecomando

3

8

(Distanza dalla

superficie del muro)

3

4

8

1

0

5

0

Ø

1

0

0

38

0

51

5

133

A

P

A

R

E

T

E