A PARET

E

Dimensional

i

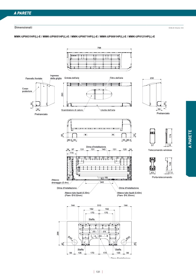
MMK-UP0031HP(L)-E / MMK-UP0051HP(L)-E / MMK-UP0071HP(L)-E / MMK-UP0091HP(L)-E / MMK-UP0121HP(L)-

E

79

8

Unità di misura: mm

Pannello frontal

e

Ingress

o

della griglia

Entrata dell'ari

a

Filtro dell'aria

23

0

Corp

o

posterior

e

7

5

5

2

9

3

50

Pretranciato

Scambiatore di calor

e

Uscita dell’ari

a

5

0

7

5

5

Pretranciato

5

0

5

0

5

.

6

6

5

5

4

2

7

9

114

Dima d'installazione

A

P

A

R

E

T

E

Attacc

o

drenaggio (0.4m

)

Dima d'installazion

e

2

9

8

4

0

55 66.

5

131

131

140

131

120 2

4

34

0

Attacco tubo liquidi (0.35m

)

(Flare 9.52mm)

144

14

4

510

6

5

94

1

7

4

57

1

8

Telecomando wireless

1

4

9

6

3

17.

5

Porta-telecomando

Dima d'installazione

Attacco tubo liquidi (0.40m

)

(Flare 6.35mm)

192

19

2

170

170

Staffa

Staffa

13

5

170

170

Staffa

13

5

6

5

94

Dima d'installazion

e

4

0

131