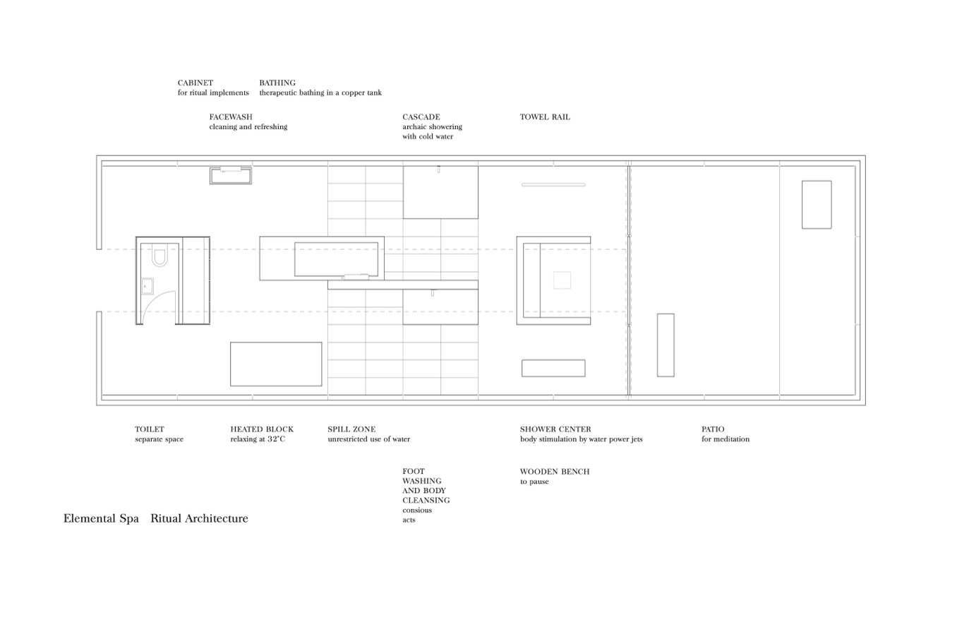
CABINET

for ritual implements

BATHING

therapeutic bathing in a copper tank

FACEWASH

cleaning and refreshing

CASCADE

archaic showering

with cold water

TOWEL RAIL

Elemental Spa

Ritual Architecture

TOILET

separate space

HEATED BLOCK

relaxing at 32

̊C

SPILL ZONE

unrestricted use of water

FOOT

WASHING

AND BODY

CLEANSING

consious

acts

SHOWER CENTER

body stimulation by water power jets

WOODEN BENCH

to pause

PATIO

for meditation