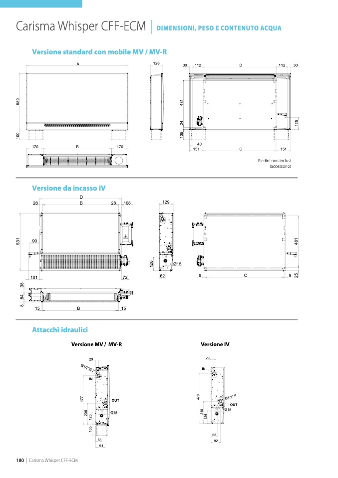
Carisma Whisper CFF-ECM |

DIMENSIONI, PESO E CONTENUTO ACQUA

Versione standard con mobile MV / MV-R

A

126

30

112

D

112

30

0

8

5

1

8

4

0

1

4

2

5

2

1

5

0

1

129

170

B

170

Versione da incasso IV

D

28

B

2

8

108

40

151

C

151

Piedini non inclusi

(accessorio)

1

3

1

8

5

4

90

6

2

1

101

72

62

8

3

4

8

8

Ø15

15

B

15

Attacchi idraulici

Versione MV / MV-R

29

Ø

1

/

2

"G

F

IN

9

C

9

5

2

Versione IV

180 | Carisma Whisper CFF-ECM

7

8

7

4

Ø1

/2

"

F

4

OUT

OUT

9

0

1

Ø15

Ø15

0

2

5

2

2

6

2

1

1

5

0

1

61

91

62

92

29

IN