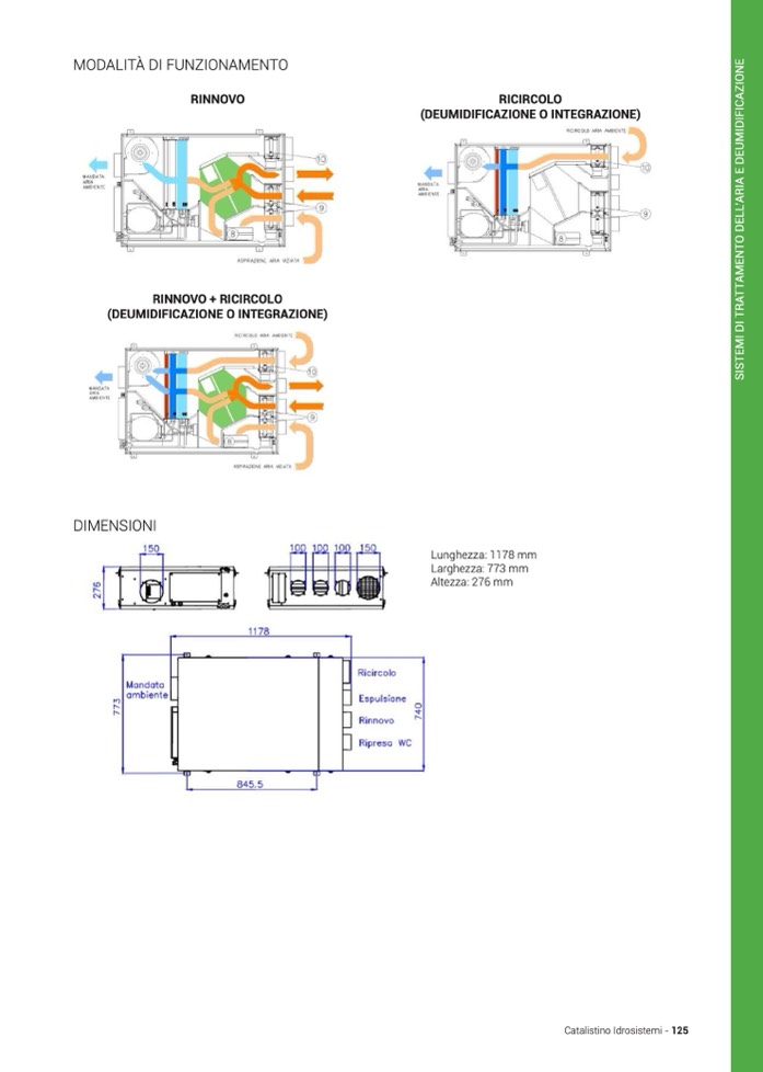
MODALITÀ DI FUNZIONAMENTO

RINNOVO

RICIRCOLO

(DEUMIDIFICAZIONE O INTEGRAZIONE)

RINNOVO + RICIRCOLO

(DEUMIDIFICAZIONE O INTEGRAZIONE)

DIMENSIONI

Lunghezza: 1178 mm

Larghezza: 773 mm

Altezza: 276 mm

Catalistino Idrosistemi - 125

S

I

S

T

E

M

I

D

I

T

R

A

T

T

A

M

E

N

T

O

D

E

L

L

A

R

I

A

E

D

E

U

M

I

D

I

F

I

C

A

Z

I

O

N

E