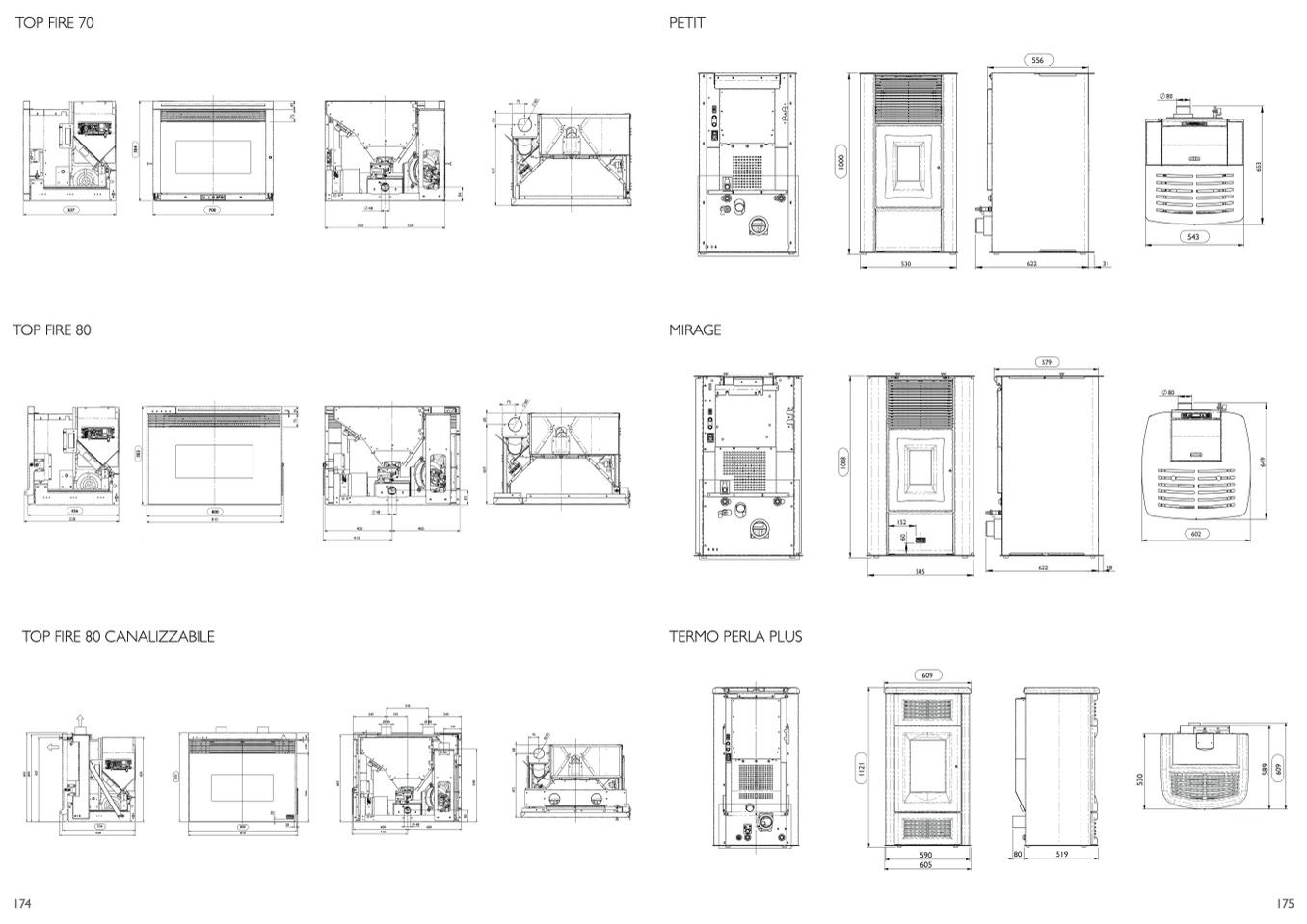
TOP FIRE 70

PETIT

TOP FIRE 80

MIRAGE

350

350

48

48

75

80

602

75

80

543

530

622

31

556

579

Ø

8

0

8

0

8

3

8

3

2

0

5

0

4

1

0

0

4

6

4

7

2

6

8

6

4

2

5

4

0

5

3

0

6

5

5

6

5

5

6

4

4

6

2

1

6

2

4

1

1

2

1

5

8

9

6

0

9

6

4

9

6

5

3

5

1

4

6

0

4

6

9

6

8

1

0

0

8

1

0

0

0

3

7

5

4

6

7

5

4

9

8

4

4

6

9

6

8

174

175

558

810

152

585

609

TOP FIRE 80 CANALIZZABILE

TERMO PERLA PLUS

536

558

800

810

20

Ø48

400

400

410

400

245

155

245

Ø 80

Ø 80

400

410

Ø 80

310

129

75

.

590

605

80

519

622

28