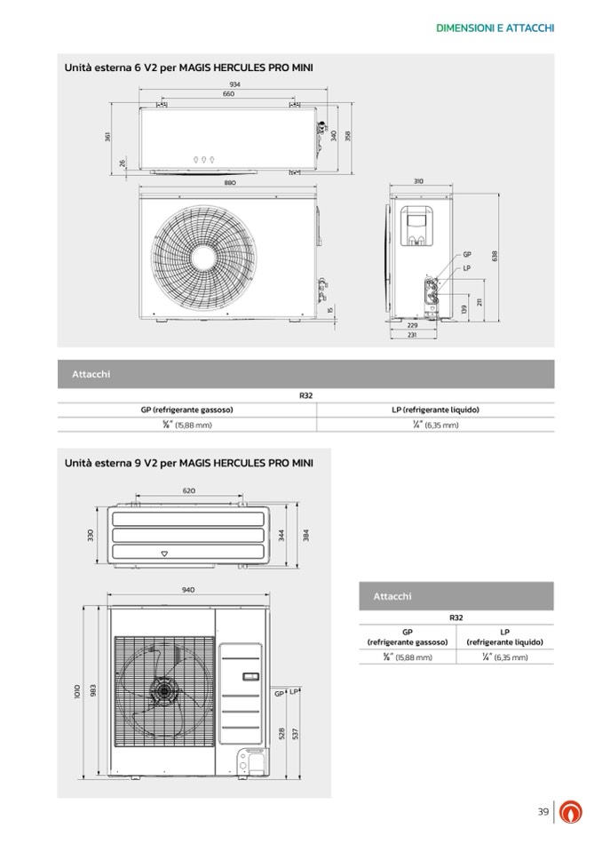
Unità esterna 6 V2 per MAGIS HERCULES PRO MINI

934

660

1

6

3

0

4

3

8

5

3

6

2

880

310

Attacchi

229

231

LP (refrigerante liquido)

1⁄4” (6,35 mm)

0

1

0

3

8

9

1

GP LP

8

2

5

7

3

5

GP (refrigerante gassoso)

5/8” (15,88 mm)

Unità esterna 9 V2 per MAGIS HERCULES PRO MINI

620

0

3

4

3

4

8

3

940

Attacchi

GP

(refrigerante gassoso)

5/8” (15,88 mm)

R32

GP

LP

1

2

5

1

9

3

1

8

3

6

DIMENSIONI E ATTACCHI

R32

LP

(refrigerante liquido)

1⁄4” (6,35 mm)

39