DISEGNI | DRAWINGS

H+35

H+35

B

12

1212

B

B B

H+35

80

AA

8080

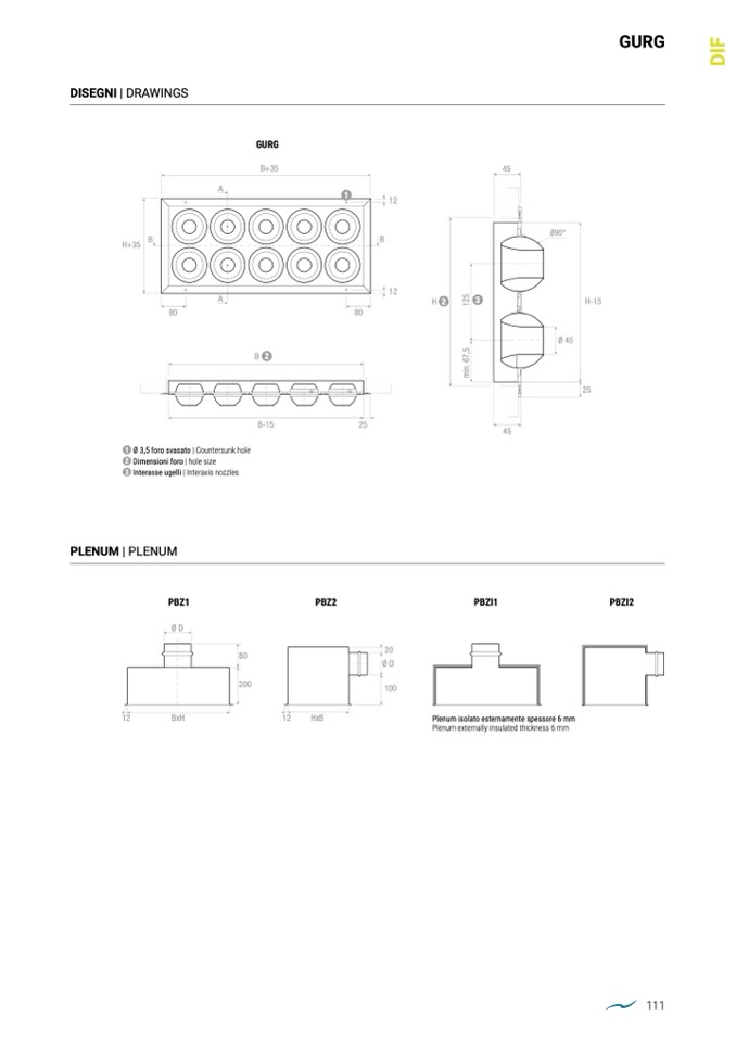
1 Ø 3,5 foro svasato | Countersunk hole

2 Dimensioni foro | hole size

3 Interasse ugelli | Interaxis nozzles

PLENUM | PLENUM

PBZ1

80

8080

25

25

1212

H2

H-15

25

2525

12

Plenum isolato esternamente spessore 6 mm

Plenum externally insulated thickness 6 mm

ØD

BxH

80

200

20

ØD

100

B2

GURG

B+35

45

4545

12

A

H

H-15

B2

B2

B-15

45

4545

Ø D

B-15

PBZ2

12

HxB

12

PBZI1

PBZI2

H

H-15

BxxH

12

HxxB

80

200

20

Ø D

100

GURG

111

m

i

n

m

.

6

i

n

7

.

,

5

6

7

,

5

1

2

5

1

2

5

D

I

F

A

B+35

B+35

1

B

B

AA

11

2

2

m

i

n

.

6

7

,

5

1

2

5

Ø90°

Ø90°

Ø90°

Ø 45

Ø 45

Ø 45

3

33

B-15

25