Maggiori informazioni su www.pontegiulio.it

Healthcare Design

11

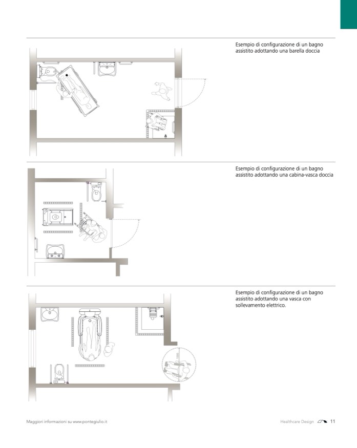
Esempio di configurazione di un bagno

assistito adottando una barella doccia

Esempio di configurazione di un bagno

assistito adottando una cabina-vasca doccia

Esempio di configurazione di un bagno

assistito adottando una vasca con

sollevamento elettrico.

1

5

0

0