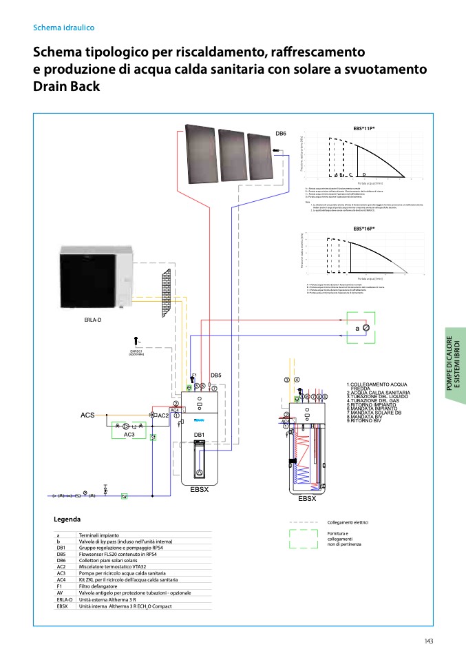
Schema idraulico

Schema tipologico per riscaldamento, raffrescamento

e produzione di acqua calda sanitaria con solare a svuotamento

Drain Back

143

Legenda

a

Terminali impianto

b

Valvola di by pass (incluso nell'unit

à interna)

DB1

Gruppo regolazione e pompaggio RPS4

DB5

Flowsensor FLS20 contenuto in RPS4

DB6

Collettori piani solari solaris

AC2

Miscelatore termostatico VTA32

AC3

Pompa per ricircolo acqua calda sanitaria

AC4

Kit ZKL per il ricircolo dell'acqua calda sanitaria

F1

Filtro defangatore

AV

Valvola antigelo per protezione tubazioni - opzionale

ERLA-D Unità esterna Altherma 3 R

EBSX

Unit

à interna Altherma 3 R ECH

2

O Compact

80

70

60

80

50

70

40

60

30

50

20

40

10

30

0

20

10

0

120

100

Note

EBS*16P*

1. La selezione di una portata esterna all'area di funzionamento può danneggiare l'unità o provocarne un malfunzionamento.

Vedere anche il range di portata acqua minima e massima ammesse nelle specifiche tecniche.

2. La qualit

à dell'acqua deve essere conforme alla direttiva UE 98/83 CE.

EBEBSS**16P*

P

P

r

e

r

e

s

s

s

i

o

i

o

n

n

e

e

s

P

s

t

r

a

t

e

a

t

s

i

t

c

s

i

c

a

i

o

a

e

n

e

s

e

s

t

e

t

s

e

r

t

n

r

a

n

t

a

i

a

c

[

k

a

[

k

P

e

P

a

s

a

]

t

]

e

r

n

a

[

k

P

a

]

P

r

e

s

s

i

o

n

e

s

P

t

r

a

e

t

s

i

s

c

s

i

a

i

o

n

e

n

s

e

t

e

s

t

r

t

a

n

a

t

a

i

c

[

a

k

a

P

e

a

s

]

t

e

r

n

a

[

k

P

a

]

Collegamenti elettrici

Fornitura e

collegamenti

non di pertinenza

EBS*11P*

EBS*11P*

DB6

ERLA

ERLA-D

ACS

a

EKRSC1

(opzionale)

t

AU

2

AC4

AC2 1

9.RITORNO BIV

F1

DB5

56

7

EBSX

3

4

2

AC4

1

1.COLLEGAMENTO ACQUA

FREDDA

DB1

5

6

7

8

9

2.ACQUA CALDA SANITARIA

3.TUBAZIONE DEL LIQUIDO

4.TUBAZIONE DEL GAS

5.RITORNO IMPIANTO

6.MANDATA IMPIANTO

7.MANDATA SOLARE DB

8.MANDATA BIV

AC3

EBSX

EBS*

11P*

0

5

10

AB

15

C

20

P

D

25

ortata acqua [l/mi

Portata acqua [l

30

35

n]

/min]

40

45

50

Note

A

B

C

D

A = Portata acqua minima durante il funzionamento normale

B =

0

Portata acqu

5

a minima ric

10

hiesta duran

1

t

5

e il funziona

2

m

0

ento del ris

2

c

5

aldatore di r

30

iserva

35

40

45

50

C = Portata acqua minima durante l'operazione di raffredd

Paomretnatoa acqua [l/min]

D= Portata acqua minima durante l'operazione di sbrinamento

A = Portata acqua minima durante il funzionamento normale

B = Portata acqua minima richiesta durante il funzionamento del riscaldatore di riserva

1. La selezione di una portata esterna all'area di funzionamento pu

ò danneggiare l'unità o provocarne un malfunzionamento.

C = Portata acqua minima durante l'operazione di ra

ffreddamento

Vedere anche il range di portata acqua minima e massima ammesse nelle speci

fiche tecniche.

D= Portata acqua minima durante l'operazione di sbrinamento

2. La qualit

à dell'acqua deve essere conforme alla direttiva UE 98/83 CE.

120

80

100

60

80

40

60

20

40

0

0

20

A

0

= Portata acqua minima durante il funzionamento normale

B =

0

Portata acqua minim

10

a richiesta durante il f

20

unzionamento del ris

3

c

0

aldatore di riserva

40

C = Portata acqua minima durante l'operazione di raffreddamento

D= Portata acqua minima durante l'operazione di sbrinamento

A = Portata acqua minima durante il funzionamento normale

B = Portata acqua minima richiesta durante il funzionamento del riscaldatore di riserva

C = Portata acqua minima durante l'operazione di ra

ffreddamento

D= Portata acqua minima durante l'operazione di sbrinamento

50

60

10

20

30

Portata ac

40

qua [l/min]

50

60

Portata

Portata acqua

[l/min]

acqua [l/min]

P

O

M

P

E

D

I

C

A

L

O

R

E

E

S

I

S

T

E

M

I

I

B

R

I

D

I