63

ARBLU

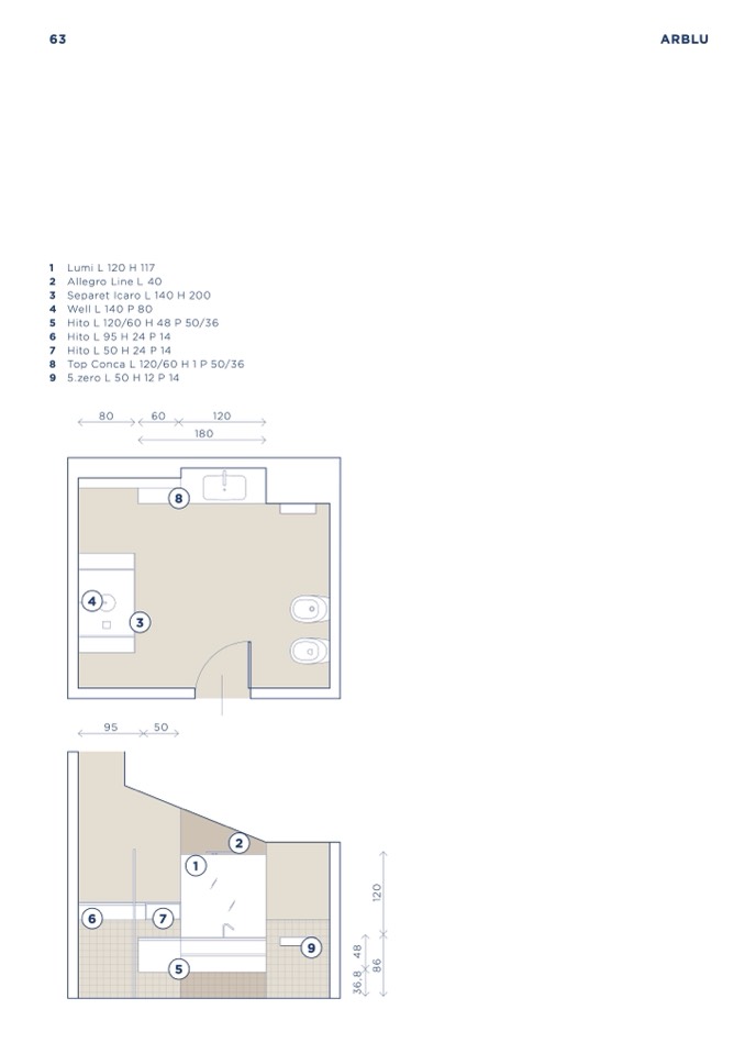
1 LumiL120H117

2 Allegro Line L 40

3 Separet Icaro L 140 H 200

4 WellL140P80

5 Hito L 120/60 H 48 P 50/36

6 HitoL95H24P14

7 HitoL50H24P14

8 Top Conca L 120/60 H 1 P 50/36

9 5.zeroL50H12P14

80

60

120

180

8

4

3

95

50

1

6

7

9

5

2

3

6

,

8

4

8

8

6

1

2

0