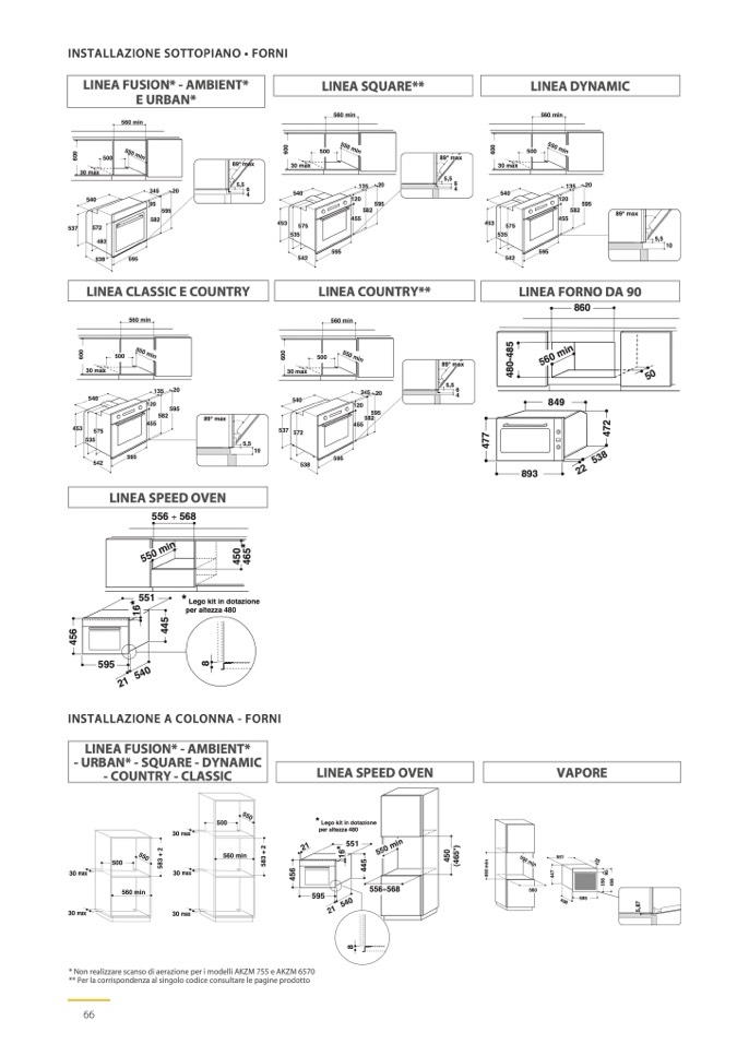
INSTALLAZIONE SOTTOPIANO • FORNI

537

453

453

89° max

5,5

10

453

LINEA FUSION* - AMBIENT*

E URBAN*

LINEA SQUARE**

LINEA DYNAMIC

500

30 max

540

572

482

538

500

89° max

500

560 min

595

560 min

560 min

345

95

582

595

20

LINEA CLASSIC E COUNTRY

560 min

500

135 20

LINEA COUNTRY**

LINEA FORNO DA 90

860

30 max

540

575

535

542

120

455

582

30 max

540

537 572

5,5

10

560 min

500

595

34520

120

595

455

582

89° max

5,5

6

4

849

595

538

LINEA SPEED OVEN

556

÷

568

595

89° max

*

Lego kit in dotazione

595

500

560 min

500

560 min

551

551

per altezza 480

INSTALLAZIONE A COLONNA - FORNI

LINEA FUSION* - AMBIENT*

- URBAN* - SQUARE - DYNAMIC

- COUNTRY - CLASSIC

LINEA SPEED OVEN

*

Lego kit in dotazione

per altezza 480

551

VAPORE

* Non realizzare scanso di aerazione per i modelli AKZM 755 e AKZM 6570

** Per la corrispondenza al singolo codice consultare le pagine prodotto

66

89° max

5,5

6

4

30 max

540

575

535

542

135

120

455

582

20

595

5,5

6

4

30 max

540

575

535

542

135 20

120

595

455

582

5

5

0

m

i

n

550 min

550 min

21 540

550 min

21

550 min

30 max

30 max

30 max

30 max

30 max

550

550

550 min

1

6

*

4

4

5

1

6

*

4

4

5

4

7

2

595

556

÷

568

560

595

595

893

595

496

20

8

5

,

8

7

3

5

6

9

5

4

5

5

5

8

3

+

2

5

8

3

+

2

4

5

6

6

0

0

6

0

0

4

5

0

m

i

n

4

7

7

4

8

0

-

4

8

5

6

0

0

4

4

7

4

5

0

(

4

6

5

*

)

4

5

6

6

0

0

6

0

0

8

4

6

5

*

4

5

0