45

ARBLU

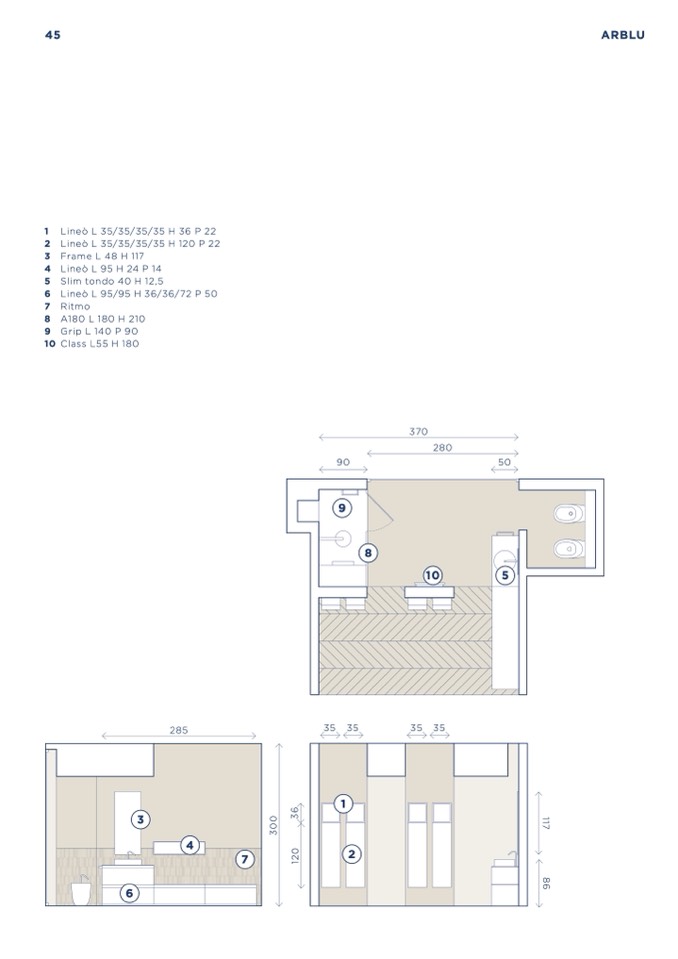
1 Lineò L 35/35/35/35 H 36 P 22

2 Lineò L 35/35/35/35 H 120 P 22

3 FrameL48H117

4 LineòL95H24P14

5 Slim tondo 40 H 12,5

6 Lineò L 95/95 H 36/36/72 P 50

7 Ritmo

8 A180L180H210

9 GripL140P90

10 Class L55 H 180

370

280

90

50

9

8

10

5

285

35 35

1

35 35

2

3

4

7

6

1

1

7

8

6

3

0

0

1

2

0

3

6

3

4

1

2

0

3

6

2

2

1

4

0