AH-SPORT: DIMENSIONI

10

LE

E

H

1

H

E

X2

XT

X1

1

B

2

B

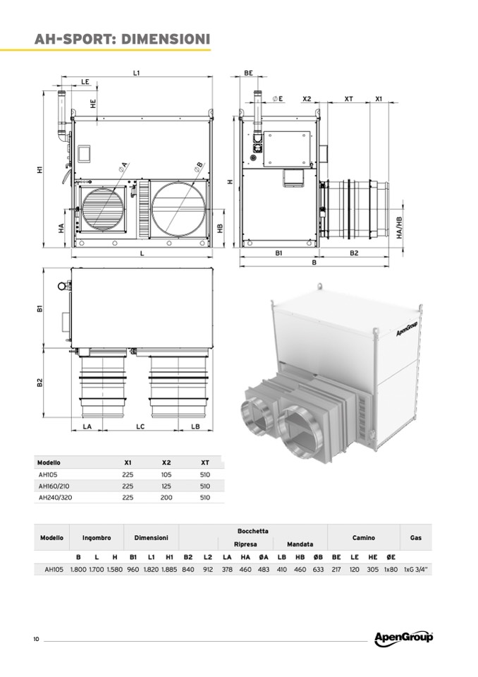
Modello

AH105

AH160/210

AH240/320

LA

LC

X1

X2

225

105

225

125

225

200

LB

PESO G

Quote senza indicazione di

tolleranza:

MATERIALE

Classe di Tolleranza

"SW-Mass@AH105IT-P00.SLDPRT

I

"

SO 2768 - M

per lavorazioni in tranciatura

ISO 2768 - C

DESCRIZIONE

FOGLIO

AH105-P00 SPORT

ApenGroup

®

SCALA

DISEGNATO DA

APPROVATO DA

A3

Heating and Conditioning Solutions

1:17

MROSSI

DISEGNO DI PROPRIETA' APEN GROUP spa

E' VIETATA LA RIPRODUZ

IONE E LA DIFFUSIONE ANCHE PARZIALE SE

L1

BE

H

A

B

B

H

/

H

H

A

H

L

B1

B2

B

XT

510

510

510

Bocchetta

Modello

Ingombro

Dimensioni

Camino

Ripresa

Mandata

B

L

H

B1

L1

H1

B2

L2

LA HA ØA

LB

HB ØB

BE

LE

HE

ØE

Gas

AH105 1.800 1.700 1.580 960 1.820 1.885 840 912 378 460 483 410 460 633 217 120 305 1x80 1xG 3/4”