VENTILCONVETTORE ASSIAL-CENTRIFUGO A CASSETTA

DIMENSIONI

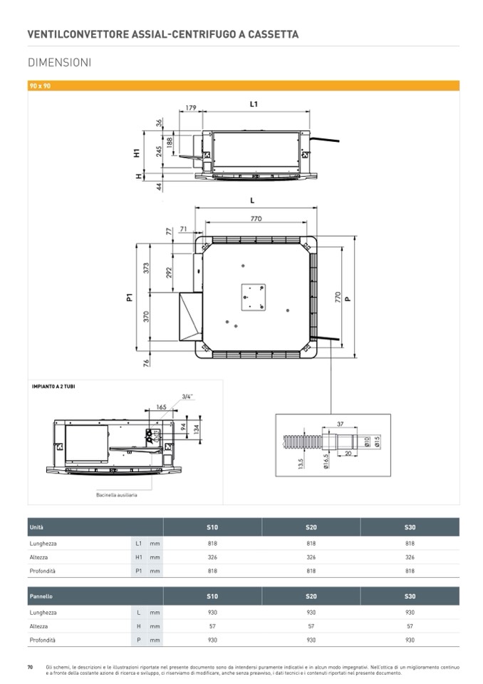
90x90

IMPIANTO A 2 TUBI

37

37

3/4”

6

7

0

1

Ø

5

1

Ø

165

20

0

1

Ø

5

1

Ø

5

,

5

,

6

1

20

4

3

1

5

,

Ø

37

9

4

3

1

5

,

3

1

6

1

Ø

0

1

Ø

5

1

Ø

20

Bacinella ausiliaria

179

L1

L1

179

L1

6

3

6

3

8

1

1

1

5

4

8

H

2

1

H

5

1

H

4

2

6

3

H

4

8

H

4

5

8

1

4

1

H

4

2

L

L

L

770

165

165

Unità

165

S10

S20

S30

818

326

818

S30

930

57

930

Lunghezza

Altezza

Profondità

0

7

P

Pannello

Lunghezza

Altezza

Profondità

L1 mm

115

818

818

0

0

4

H1 mm

326

326

9

4

3

1

P1 mm

818

818

L mm

H mm

P mm

S10

S20

930

930

57

57

930

930

70

Gli schemi, le descrizioni e le illustrazioni riportate nel presente documento sono da intendersi puramente indicativi e in alcun modo impegnativi. Nell’ottica di un miglioramento continuo

e a fronte della costante azione di ricerca e sviluppo, ci riserviamo di modificare, anche senza preavviso, i dati tecnici e i contenuti riportati nel presente documento.

179

L1

7

71

H

770

7

4

71

165

7

4

L

161515

0

0

115

770

3

7

3

2

0

0

3

9

7

71

7

2

7

3

2

9

2

1

P

0

7

P

0

1

1

0

7

P

P

0

7

3

7

3

2

9

7

P

3

2

0

7

3

6

7

6

7

1

P

0

7

P

0

7

3

5

,

5

,

6

1

3

1

Ø