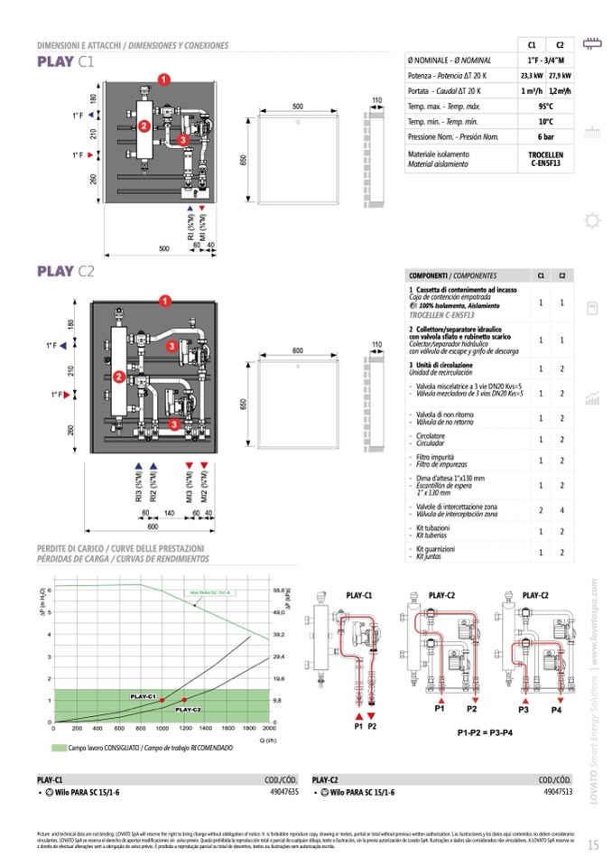
DIMENSIONI E ATTACCHI / DIMENSIONES Y CONEXIONES

PLAY C1

1

2

3

0

5

6

0

6

2

Ø NOMINALE -

Potenza - Potencia 20

Portata - Caudal 20

Temp. max. - Temp. máx.

Temp. min. - Temp. mín.

Pressione Nom. - Presión Nom.

Materiale isolamento

Material aislamiento

COMPONENTI / COMPONENTES

1 Cassettadicontenimentoadincasso

aa de contención emotrada

100% Isolamento, Aislamiento

TROCELLEN C-EN5F13

2 Collettore/separatoreidraulico

con valvola sfiato e rubinetto scarico

Colector/separador hidráulico

con válvula de escape y grifo de descarga

3 Unitàdicircolazione

Unidad de recirculación

C1

C2

1”F - 3/4”M

23,3 kW 27,9 kW

1 m3/h 1,2m3/h

95°C

10°C

6 bar

TROCELLEN

C-EN5F13

C1

C2

1

1

1

1

1

2

1” F

PLAY C2

0

8

1

0

1

2

0

6

2

)

M

)

M

3

4

(

I

3

4

(

I

R

M

60 40

1

1" F

1" F

3

600

110

0

8

1

1” F

0

1

2

500

110

2

3

3

0

5

6

alvolamiscelatriceavie20vs5

- Válvula mezcladora de 3 vías DN20 Kvs=5

1

2

PERDITE DI CARICO / CURVE DELLE PRESTAZIONI

PÉRDIDAS DE CARGA / CURVAS DE RENDIMIENTOS

500

)

M

"

)

M

"

)

M

"

)

M

"

3

4

(

3

4

(

3

4

(

3

4

(

- Valvoladinonritorno

- Válvuladenoretorno

- Circolatore

- Circulador

- Filtroimpurità

- Filtrodeimpurezas

imadattesa0mm

- Escantillóndeespera

1”x130mm

- Valvolediintercettazionezona

- Válvula de interceptación zona

ittubazioni

- Kittuberías

it guarnizioni

it untas

1

2

1

2

1

2

1

2

2

4

1

2

1

2

3

2

3

2

I

R

I

R

I

M

I

M

60

140

6040

600

)

O

)

a

m

o

2

P

c

6

Wilo PARA SC 15/1- 6

58,8

H

k

(

.

PLAY-C1

PLAY-C2

PLAY-C2

m

(

P

P

a

p

s

5

49,0

o

t

a

v

o

4

39,2

l

.

w

3

29,4

w

|

2

19,6

1

PLAY-C1

9,8

s

n

o

i

t

u

l

o

S

y

g

r

PLAY-C2

P1

P2

P3

P4

0

0

0

200

400

600

800

1000

1200 1400 1600

1800

2000

P1 P2

P 1- P 2 = P 3- P 4

Q (l/h)

Campo lavoro CONSIGLIATO / amo de trabao

e

n

E

t

r

a

m

S

PLAY-C1

Wilo PARA SC 15/1-6

COD./CÓD.

PLAY-C2

05

Wilo PARA SC 15/1-6

COD./CÓD.

05

O

T

A

V

O

L

15

Picture and technical data are not binding. LOVATO SpA will reserve the right to bring change without obbligation of notice. It is forbidden reproduce copy, drawing or texties, partial or total without previous written authorization. Las ilustraciones y los datos aquí contenidos no deben considerarse

vinculantes. p se reserva el dereco de aportar modificaciones sin aviso previo. ueda proibida la reproduccin total o parcial de cualuier dibuo teto o ilustracin sin la previa autorizacin de ovato p. lustraes e dados so considerados no vinculativos. p reservase

o direito de eectuar alteraes sem a obrigao de aviso prvio. proibida a reproduo parcial ou total de desenos tetos ou ilustraes sem autorizao escrita.