MAGIS COMBO 12/14/16 V2

MAGIS COMBO PLUS 12/14/16 PLUS V2

4

0

50

35

40 5L0P GP

35 SC

135 4550 90 70

LP GP

SC

135 4550 90 70

GACAF R M

G AC AF

440

R

M

139.5

440

115

115

70.5

139.5

115

115

70.5

137

137

40 50 35

35

35

40 50 35

35

LP GP RU MU SC

35

LP135GP 60RU M5U5 S70C

135 60

5570

G RR

R M

G RR R M

8

440

2

139.5

115

115 70.5

137

440

8

8

139.5

115

115 70.5

137

8

2

2

2

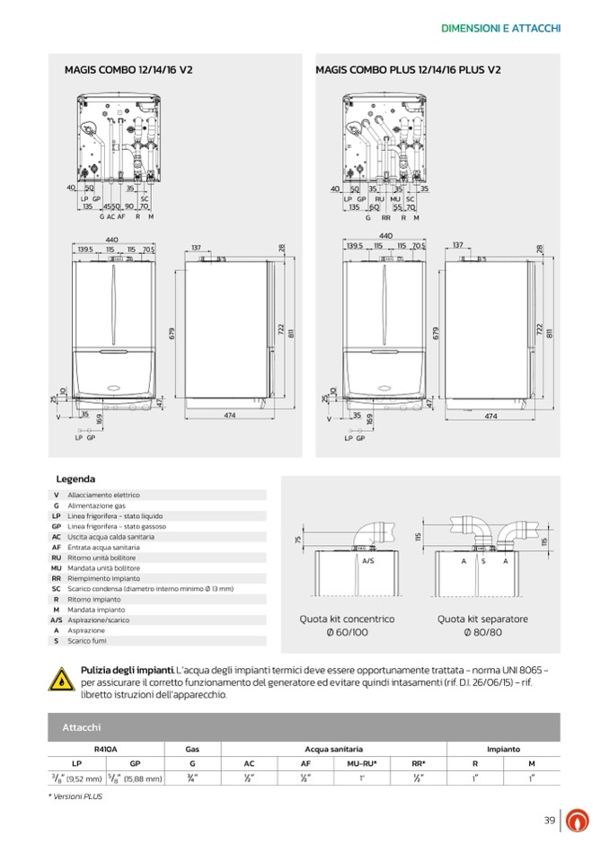
RR Riempimento impianto

SC Scarico condensa (diametro interno minimo Ø 13 mm)

R Ritorno impianto

M Mandata impianto

A/S Aspirazione/scarico

A

Aspirazione

S

Scarico fumi

Quota kit concentrico

Ø 60/100

Quota kit separatore

Ø 80/80

* Versioni PLUS

9

7

2

7

1

8

9

2

1

9

2

1

9

2

1

8

6

2

2

1

7

7

7

6

7

1

8

6

7

6

7

1

8

5

0

1

0

1

2

0

1

7

4

5

2

0

1

7

5

5

2

7

2

7

4

V

35

9

4

4

474

6

35

V

474

1

9

35

V

V

474

9

9

1

474

35

6

LP GP

6

1

6

1

LP GP

LP GP

LP GP

Legenda

V Allacciamento elettrico

G Alimentazione gas

LP Linea frigorifera - stato liquido

GP Linea frigorifera - stato gassoso

AC Uscita acqua calda sanitaria

5

7

5

1

5

1

AF Entrata acqua sanitaria

RU Ritorno unità bollitore

A/S

A

S

A

MU Mandata unit

à bollitore

Pulizia degli impianti. L’acqua degli impianti termici deve essere opportunamente trattata - norma UNI 8065 -

per assicurare il corretto funzionamento del generatore ed evitare quindi intasamenti (rif. D.I. 26/06/15) - rif.

libretto istruzioni dell’apparecchio.

Attacchi

R410A

LP

3

/

8

” (9,52 mm)

5

/

8

” (15,88 mm)

Gas

G

AC

Acqua sanitaria

AF

MU-RU*

RR*

Impianto

GP

R

1

M

1

3⁄4”

1⁄2”

1⁄2”

1”

1⁄2”

DIMENSIONI E ATTACCHI

39