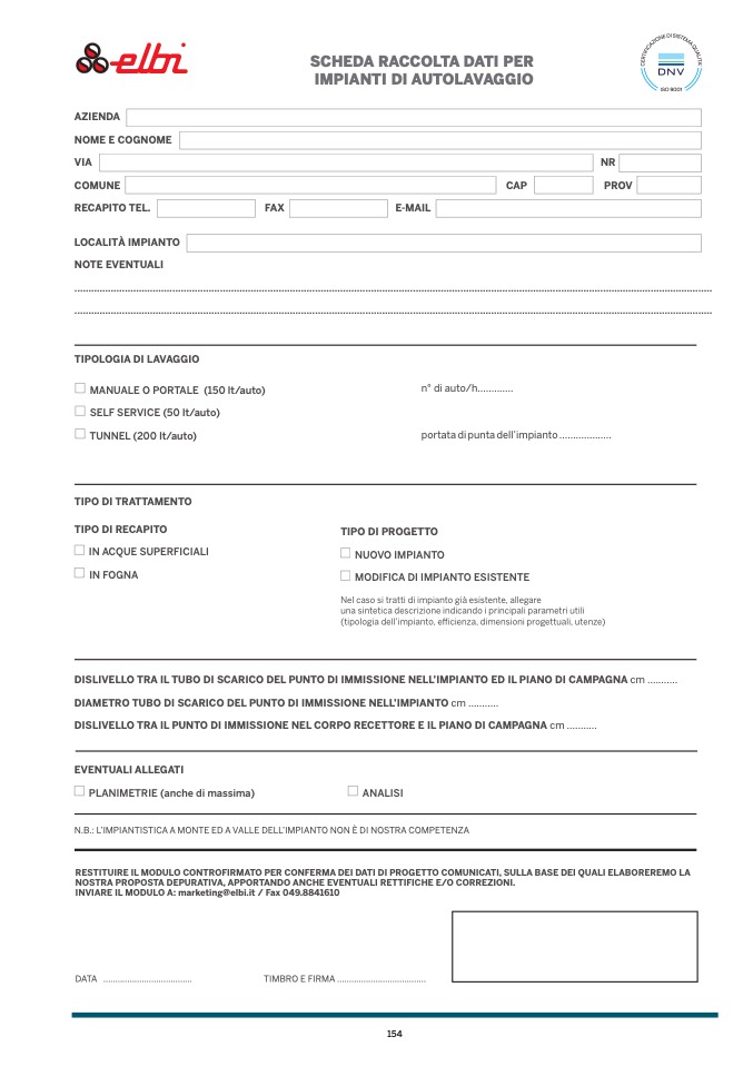
SCHEDA RACCOLTA DATI PER

IMPIANTI DI AUTOLAVAGGI

O

CAP

NR

PROV

FAX

E-MAIL

AZIENDA

NOME E COGNOME

VIA

COMUNE

RECAPITO TEL.

LOCALITÀ IMPIANTO

NOTE EVENTUAL

I

....................................................................................................................................................................................................................................

....................................................................................................................................................................................................................................

TIPOLOGIA DI LAVAGGI

O

MANUALE O PORTALE (150 lt/auto

)

SELF SERVICE (50 lt/auto

)

TUNNEL (200 lt/auto)

n° di auto/h............

.

portata di punta dell’impianto ...................

TIPO DI TRATTAMENT

O

TIPO DI RECAPIT

O

IN ACQUE SUPERFICIAL

I

IN FOGN

A

TIPO DI PROGETTO

NUOVO IMPIANTO

MODIFICA DI IMPIANTO ESISTENTE

Nel caso si tratti di impianto già esistente, allegare

una sintetica descrizione indicando i principali parametri utili

(tipologia dell’impianto, e

fficienza, dimensioni progettuali, utenze)

DISLIVELLO TRA IL TUBO DI SCARICO DEL PUNTO DI IMMISSIONE NELL’IMPIANTO ED IL PIANO DI CAMPAGNA cm ..........

.

DIAMETRO TUBO DI SCARICO DEL PUNTO DI IMMISSIONE NELL’IMPIANTO cm ...........

DISLIVELLO TRA IL PUNTO DI IMMISSIONE NEL CORPO RECETTORE E IL PIANO DI CAMPAGNA cm ...........

EVENTUALI ALLEGAT

I

PLANIMETRIE (anche di massima)

ANALIS

I

N.B.: L’IMPIANTISTICA A MONTE ED A VALLE DELL’IMPIANTO NON È DI NOSTRA COMPETENZ

A

RESTITUIRE IL MODULO CONTROFIRMATO PER CONFERMA DEI DATI DI PROGETTO COMUNICATI, SULLA BASE DEI QUALI ELABOREREMO LA

NOSTRA PROPOSTA DEPURATIVA, APPORTANDO ANCHE EVENTUALI RETTIFICHE E/O CORREZIONI.

INVIARE IL MODULO A: marketing@elbi.it / Fax 049.884161

0

DATA .....................................

TIMBRO E FIRMA ....................................

.

154