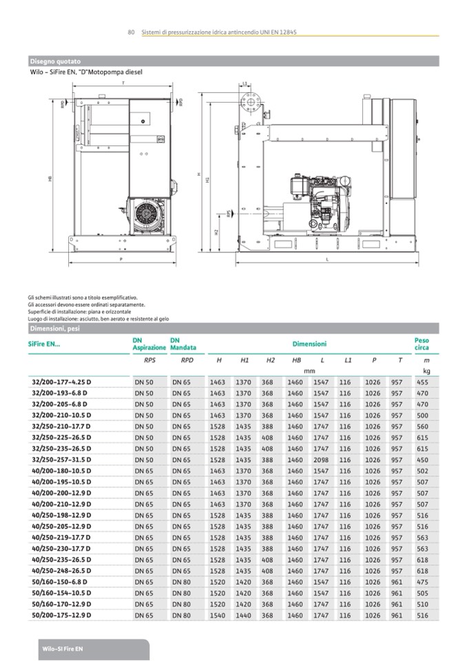
Gli schemi illustrati sono a titolo esemplificativo.

Gli accessori devono essere ordinati separatamente.

Superficie di installazione: piana e orizzontale

Luogo di installazione: asciutto, ben aerato e resistente al gelo

�����������������

������������

������������������

�����������������

�����������������

������������������

������������������

������������������

������������������

������������������

������������������

������������������

������������������

������������������

������������������

������������������

������������������

������������������

������������������

������������������

�����������������

������������������

������������������

������������������

���

���

����������� �������

����������

�����

�����

���������������

80 Sistemi di pressurizzazione idrica antincendio UNI EN 12845

���������������

Wilo - SiFire EN, "D"Motopompa diesel

T

L1

H

2

R

P

S

H

B

H

H

1

R

P

D

R

P

D

P

L

DN 50

DN 50

DN 50

DN 50

DN 50

DN 50

DN 50

DN 50

DN 65

DN 65

DN 65

DN 65

DN 65

DN 65

DN 65

DN 65

DN 65

DN 65

DN 65

DN 65

DN 65

DN 65

DN 65

DN 65

DN 65

DN 65

DN 65

DN 65

DN 65

DN 65

DN 65

DN 65

DN 65

DN 65

DN 65

DN 65

DN 65

DN 65

DN 65

DN 65

DN 80

DN 80

DN 80

DN 80

1463

1370

368

1463

1370

368

1463

1370

368

1463

1370

368

1528

1435

388

1528

1435

408

1528

1435

408

1528

1435

388

1463

1370

368

1463

1370

368

1463

1370

368

1463

1370

368

1528

1435

388

1528

1435

388

1528

1435

388

1528

1435

388

1528

1435

408

1528

1435

408

1520

1420

368

1520

1420

368

1520

1420

368

1540

1440

368

mm

1460

1547

116

1460

1547

116

1460

1547

116

1460

1547

116

1460

1747

116

1460

1747

116

1460

1747

116

1460

2098

116

1460

1547

116

1460

1747

116

1460

1747

116

1460

1747

116

1460

1747

116

1460

1747

116

1460

1747

116

1460

1747

116

1460

1747

116

1460

1747

116

1460

1547

116

1460

1547

116

1460

1747

116

1460

1747

116

kg

1026

957

455

1026

957

470

1026

957

470

1026

957

500

1026

957

560

1026

957

615

1026

957

615

1026

957

450

1026

957

502

1026

957

507

1026

957

507

1026

957

507

1026

957

516

1026

957

516

1026

957

563

1026

957

563

1026

957

618

1026

957

618

1026

961

475

1026

961

505

1026

961

510

1026

961

516

RPS

RPD

H

H1

H2

HB

L

L1

P

T

m