18

10

6

15

1

1

16

13

HUB RADIATOR MINI XL

Caldaia termodinamica brevettata ad alta efficienza a scambio diretto

refrigerante/acqua per produrre acqua calda sanitaria e riscaldamento per piccole e medie utenze

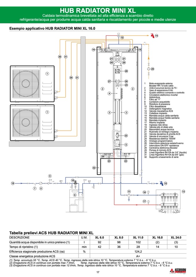
Esempio applicativo HUB RADIATOR MINI XL 16.0

7

8

1

1

30

31

9

Tabella prelievi ACS HUB RADIATOR MINI XL

XL 6.0

92

42

XL 8.0

98

36

17

XL 11.0

102

28

124,2

A+

XL 16.0

(2)

14

XL 24.0

(3)

10

DESCRIZIONE

Quantità acqua disponibile in unico prelievo (1)

Tempo di ripristino (1)

Efficienza stagionale produzione ACS (ηs)

Classe energetica produzione ACS

U.M.

l

min

%

30

31

21

20

27

(1) Temp. accumulo 55 °C, Temp. ACS 40 °C, Temp. ingresso dalla rete idrica 10 °C, Temperatura esterna 7 °C b.s. - 6 °C b.u.

(2) Erogazione ACS in continuo con portata max 7 l/min,

Temp. ingresso dalla rete idrica 10 °C, Temperatura esterna 7 °C b.s. - 6 °C b.u.

(3) Erogazione ACS in continuo con portata max 12 l/min, Temp. ingresso dalla rete idrica 10 °C, Temperatura esterna 7 °C b.s. - 6 °C b.u.

19

12

21

20

28

26

19

14

29

1 Moto-evaporante esterna

Booster HR 7.8 solo caldo

2

Unità di accumulo tecnico da 75 l

3 Vaso di espansione 6 litri

4 Quadro elettrico comando e controllo

5 Circolatore elettronico inverter

6 Addolcitore

7 Filtro ad “Y”

8 Contatore acquedotto

9 Riduttore di pressione

10 Filtro dissabiatore

11 Defangatore magnetico

12 Valvola miscelatrice ACS

13 Collettore impianto

14 Mandata acqua calda sanitaria

15 Mandata acqua fredda sanitaria

16 Mandata impianto

17 Ritorno impianto

18 Ingresso rete idrica

19 Valvola jolly di sfiato aria

20 Manometro acqua tecnica

21 Rubinetto di reintegro impianto

22 Valvola deviatrice di priorità ACS

23 Valvola di sicurezza 3 bar

24 Resistenza elettrica 1500W

25 Orologio programmatore

26 Interruttore selezione estate/inverno

27 Interruttore ON-OFF resistenza

28 Centralina elettronica Booster

29 Pompa di ricircolo ACS

30 Linea frigorifera R410A da 1/4” (liquido)

31 Linea frigorifera R410A da 5/8” (gas)

32 Supporto a basamento di serie

32

17

25

2

2

4

3

3

24

22

5

23

23